︎
<pre>
ALL
URBAN
PUBLIC
RESIDENTIAL
PRIVATE
SMALL
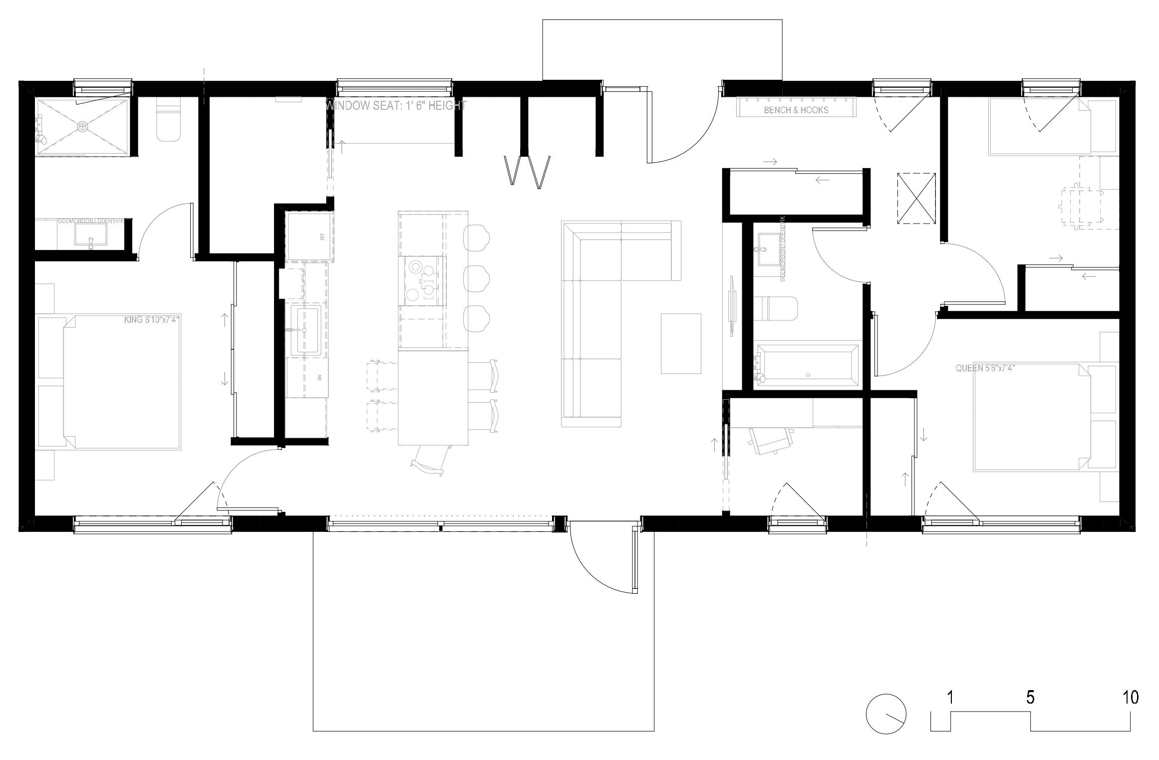
SUN MOON CABIN
High performance cabin with wooden frame for rent and living.
location
NY, US
footage
1 251 sq.ft
year
2022-2023
status
ongoing
involvement
concept design, technical drawings
team
Ben Freed
︎︎︎back
ANTON GERASYMOVYCH
©2024 <pre>PORTFOLIO
KYIV, UA